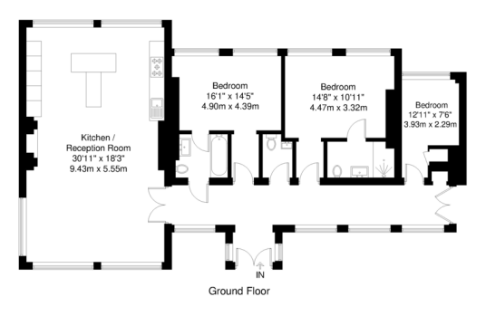
Royal Connaught Drive Bushey WD23
This style property is located in is currently For Sale and has been listed on BrownRok - estate agency business. This property is listed at £ 742,500. It has 3 Bedrooms bedrooms, 2 Bathrooms bathrooms, and is . The property was built in year.















